

1 / 2
1 039
,98 zł
z 60 szt.
Dostawa
Darmowa dostawa. Dostawa u Ciebie we wtorekSZCZEGÓŁY
ZAPŁAĆ PÓŹNIEJ
SZCZEGÓŁY
Sprawdzony sklep | Kupujesz od firmy
Tradax
4.6
SZCZEGÓŁY
Zwroty
14 dni na odstąpienie od umowy
SZCZEGÓŁY

1 039.98 zł
Parametry
Stan
nowy
EAN
4005176863943
Opis
✔️Wyjątkowa nośność do 400 kg, zapewniająca stabilność i bezpieczeństwo instalacji w ścianach nośnych lub szkieletowych.
✔️ Technologia Whisper® redukująca hałas spłukiwania do minimalnego poziomu, dla pełnego komfortu i ciszy w domu.
✔️ EcoJoy® z dwupojemnościowym spłukiwaniem i funkcją Start/Stop, oszczędzająca do 50% wody i obniżająca koszty eksploatacji.
✔️ QuickFix® i regulowana konstrukcja, umożliwiające szybki montaż oraz adaptację do różnych typów zabudowy bez komplikacji.
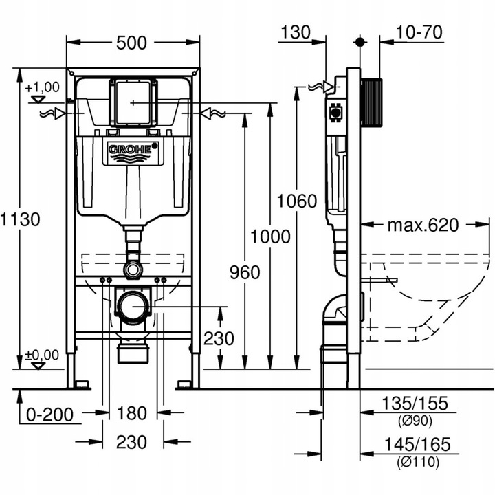
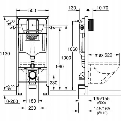
Stelaż podtynkowy Grohe Rapid SL o wysokości 1,13 m wyróżnia się solidną konstrukcją z ramy stalowej powlekanej proszkowo, która zapewnia niezawodne podparcie nawet do 400 kg obciążenia. Dzięki temu montaż podwieszanej miski sedesowej przyściennej lub w ścianie szkieletowej staje się prosty i trwały, gwarantując długoletnią, bezproblemową eksploatację w nowoczesnej łazience.
Wyposażony w zaawansowaną technologię Whisper®, ten stelaż minimalizuje hałas spłukiwania do poziomu szeptu, zapobiegając przenoszeniu dźwięków na strukturę budynku. Idealny do aranżacji, gdzie łazienka sąsiaduje z sypialnią, pozwala cieszyć się spokojem bez zakłóceń, zachowując harmonię w całym domu.
Spłuczka GD2 o pojemności 6-9 l z technologią EcoJoy® oraz funkcją spłukiwania dwupojemnościowego i Start/Stop umożliwia oszczędność nawet 50% wody, zatrzymując przepływ w dowolnym momencie. To rozwiązanie nie tylko chroni zasoby naturalne, ale też obniża rachunki, zapewniając ekologiczny i ekonomiczny komfort użytkowania.
System QuickFix® przyspiesza instalację nawet dwukrotnie, a regulowana wysokość z blokadą oraz ustalone przyłącza do obiektu ułatwiają adaptację do różnych projektów. Wodoodporna izolacja przeciwroszeniowa i pneumatyczny zawór odpływowy z trzema funkcjami gwarantują niezawodność i elastyczność w montażu pionowym lub poziomym, czyniąc go kluczem do idealnej, spersonalizowanej aranżacji łazienki.
✅ Stan: Nowy
✅ Linia: Rapid SL
✅ Marka: Grohe
✅ Wysokość stelaża: 113 cm
✅ Szerokość stelaża: 50 cm
✅ Informacje dodatkowe: bez kołnierza
✅ Waga produktu z opakowaniem jednostkowym: 16 kg
✅ Kod producenta: 38528001
Numer oferty: 61508282
Informacje dotyczące bezpieczeństwa i zgodności
Porównaj produkty
Stan
nowy
EAN
4005176863943
Najczęściej kupowane
Inni klienci oglądali również
Nowe produkty